你有没有想过,当你看到一台注塑机工作时,那些塑料零件是如何从机器中“跳”出来的呢?这就是注塑抽料装置的神奇之处!今天,就让我带你一起揭开注塑抽料装置图纸的神秘面纱,让你成为了解注塑工艺的小行家!
一、什么是注塑抽料装置?

注塑抽料装置,顾名思义,就是负责将注塑机中熔融的塑料原料抽取出来,形成各种形状的塑料制品的装置。它就像是注塑机的“嘴巴”,将原料“吃”进去,再将成品“吐”出来。
二、注塑抽料装置图纸怎么看?

1. 图纸类型

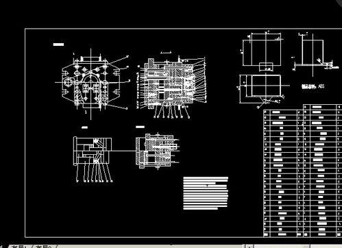
首先,你得知道注塑抽料装置图纸的类型。常见的有二维图纸和三维图纸。二维图纸就像是我们平时看到的平面图,而三维图纸则能更直观地展示装置的立体结构。
2. 图纸内容
- 视图:图纸上的视图包括正视图、侧视图、俯视图等,它们分别展示了装置在不同角度下的形状和尺寸。
- 尺寸标注:尺寸标注是图纸的灵魂,它告诉我们在实际生产中,每个部件的尺寸应该是多少。
- 材料标注:材料标注告诉我们每个部件应该使用什么材料,这对于保证产品质量至关重要。
- 装配关系:装配关系展示了各个部件之间的连接方式和顺序,这对于组装和维修非常有帮助。
3. 解读技巧
- 先看视图:先从正视图开始,了解整个装置的大致形状和尺寸。
- 再看尺寸标注:仔细阅读尺寸标注,确保每个部件的尺寸符合要求。
- 分析材料标注:根据材料标注选择合适的材料,确保产品质量。
- 研究装配关系:了解各个部件的装配顺序和连接方式,为实际操作做好准备。
三、注塑抽料装置图纸的常见问题
1. 尺寸错误:尺寸错误会导致产品尺寸不符合要求,影响产品质量。
2. 材料错误:材料错误会导致产品性能不稳定,甚至无法使用。
3. 装配关系错误:装配关系错误会导致产品无法正常工作,甚至损坏。
四、如何避免这些问题?
1. 仔细阅读图纸:在开始生产前,一定要仔细阅读图纸,确保对每个部件的尺寸、材料和装配关系都有清晰的认识。
2. 与工程师沟通:如果对图纸有任何疑问,及时与工程师沟通,避免因误解导致错误。
3. 严格把控生产过程:在生产过程中,严格按照图纸要求进行操作,确保产品质量。
通过以上内容,相信你已经对注塑抽料装置图纸有了更深入的了解。记住,掌握图纸解读技巧,是成为一名优秀注塑工艺师的关键!让我们一起努力,为我国注塑行业的发展贡献自己的力量吧!